新築住宅
富士山の望める住まい!2階ホールにはランドリーコーナーを配置◎
-
-
- 外観完成予想パースです♪
-
-
-
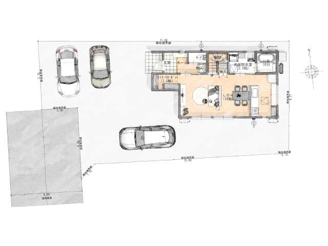
- 配置図
-
物件情報
| 価格 | 3,320万円 |
|---|---|
| 所在地 | 富士市柚木字河原42-23他 |
| 学区 | 富士市 富士第一小学校 |
| 通学時間 (徒歩約) |
19分 |
| 完成時期 | 令和8年5月頃 |
| 入居時期 | 相談 |
| 駐車場 | 駐車スペース3台 |
| 構造 | 木造軸組工法2階建て |
| 間取り | 2LDK |
| 土地面積 |
193.45㎡
58.51坪 |
| 建物面積 |
90.87㎡
27.48坪 |
| 交通 | JR 柚木駅 約500m |
| 接道・私道負担 | 西側 幅員5m 公道に接道 |
| 設備 | 東京電力・公共上水道・オール電化 |
| 権利 | 所有権 |
| 地目 | 宅地 |
| 用途地域 | 第一種住居 |
| 建築確認番号 | 第2025確認建築静建住ま07236号 |
| 取引態様 | 売主 |
| 備考 | ホームページにて完成済物件の内観写真多数掲載中♪ 平日休日問わずご案内可能ですので、お気軽にお問合せください。 |
MAP
- 現在地から物件までの経路を表示
-
この物件を見に行く(経路)
- この物件に「ちょっとだけ質問」したい方は
-
メールで質問する
- この物件に「ご興味」がある方は
-
物件資料を取り寄せる
- この物件に「今すぐ質問」したい方は
-
電話で質問する
物件取扱会社
| 会社名 | 川祥建設 株式会社 |
|---|---|
| 住所 | 富士市伝法3107-1 |
| 電話番号 | 0545-52-5312 |
| 公式サイト | https://www.kawasho-k.co.jp/ |
| 所属団体 | (公社)静岡県宅地建物取引業協会会員 東海不動産公正取引協議会加盟 |
| 免許番号 | 静岡県知事免許(12)第4668号 |
